ADU Floor Plans - Bay Area
As Seen In:
Custom ADU Floor Plans to Maximize Space and Comfort
Bring Your Vision of an Accessory Living Unit to Life with a Custom Design that Maximizes Space, Utility, Style + Comfort
Garage Conversions
Garages make great studios, one bedroom and two bedroom dwellings. Studio ADUs start at 170 sq ft, one bedrooms at 400 sq ft and two bedrooms at 500 sq ft. One standard bathroom and kitchen are included. Junior ADU [JADU] are available and can include a kitchen only, sharing a bath with the main dwelling. Below are examples - everything is customizable.
STUDIO - $150k
1 BEDROOM - $195k
1 BEDROOM - $195k
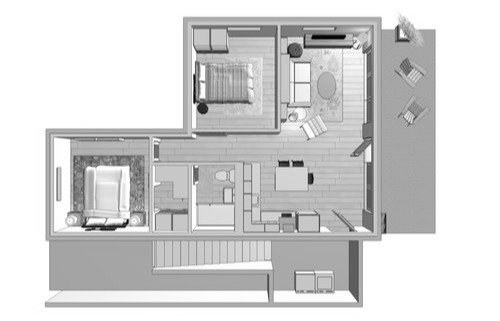
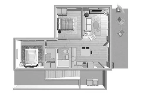
2 BEDROOM $210k
2 BEDROOM - $210k
Final pricing depends on site-specific factors*
Home Conversions
Symbihom creates custom dwellings for in-home conversions. We can transform an unfinished basement or unused section of your home into a beautiful ADU or JADU of your choosing. These sample floor plans are a studio, one bedroom and two bedroom ranging in square footage from 170 sq ft to 500 sq ft and include a kitchen and a bathroom. JADU [Junior ADU which enters the home] are also available.
STUDIO - $150k
1 BEDROOM - $195k
1 BEDROOM - $195k
2 BEDROOM - $210k
2 BEDROOM - $210k
Final pricing depends on site-specific factors*
There are so many possibilities when it comes to Symbihom’s pre-fabricated, modular backyard dwelling ADU’s. Our sample floor plans of 500 sf, 750 sf, 1000sf and 1200sf show one, two or three bedroom and one or two bathroom variations and are much more spacious than a tiny home. Our fully customizable modular building systems allows many options based on the clients needs.
Backyard
Builds
1 BEDROOM | 1 BATHROOM
500 SQ FT - $325k
2 BEDROOM | 1 BATHROOM
750 SQ FT - $425k
3 BEDROOM | 2 BATHROOM
1000 SQ FT - $500k
3 BEDROOM | 2 BATHROOM
1200 SQ FT - $650k
Final pricing depends on site-specific factors*
Sustainable + Efficient
No VOC’s
Energy Efficient
Natural Flooring
Solid Core Wood Doors
Space Saving Doors
Small Spaces + High Quality
Signature Finishes
Sleek Showers, Floating Toilets + Ample Bathroom Storage
Cove Lighting
Energy Star Appliances
Modern Glass Doors + Windows
Structural Integrity
Light Gauge Steel Framing
Fully Customizable Framing
Mold + Mildew Resistant
Custom Wall Panels
Pre-Fabricated Off-Site
Approved + Inspected Prior to Delivery
HCD State-Approved
Pre-Wired + Pre-Plumbed
Accessibility Available
Fixtures, Finishes + Customizations
-

Fixtures
Our premium fixtures offer a sleek, durable, and corrosion resistant finish, perfect for adding a modern and polished touch to any space.
-

Finishes
Smooth walls provide a high-quality, polished finish. Paint offers a balance of durability and washability. Quartz countertops and shower walls are both stylish and low-maintenance. Natural floors provide a comfortable, eco-friendly, and durable flooring option.
-

Customizations
Choose from a variety of cabinet styles, colors, and hardware. Customize your bathroom for accessibility. Select your desired floor color and type. Choose from a range of paint colors. Select your preferred door style.
-

Interiors
We can assist with selecting, purchasing, and arranging furnishings to perfectly fit your space.